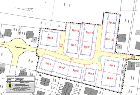
Baugebiete eröffnen Entwicklungsmöglichkeiten Im Baugebiet Hahnenfeld II in Strümpfelbrunn sollen 13 Bauplätze erschlossen werden. Fünf davon sind bereits reserviert, für zwei weitere gibt es laut Bürgermeister Markus Haas ebenfalls Interessenten. (Grafik: Schwing&Dr. Neureither/Repro: Hofherr)(hof) Wilhelmstraße, Hahnenfeld II und Leimengrube III eröffnen Entwicklungsmöglichkeiten für Ortsteile – Baumängel Katzenbuckel-Therme – Gemeinde schließt Vergleich mit Planer und Baufirma
Zu einer verhältnismäßigen kurzen Sitzung kam am Montag der Gemeinderat Waldbrunn zusammen. Zunächst ging es um die Beratung und Beschlussfassung über die Aufstellung einer sogenannten Einbeziehungssatzung zur Ausweisung von Wohnbaugrundstücken an der Wilhelmstraße im Ortsteil Weisbach. Außerdem sollte der Planentwurf zur frühzeitigen Beteiligung der Bevölkerung und diverser Verbände und Behörden beschlossen werden. Da man diesen Punkt bereits im Januar ausführlich nicht-öffentlich gemeinsam mit dem Ortschaftsrat Weisbach besprochen hatte, ging die Beschlussfassung schnell über die Bühne. Dem anwesenden Planer blieb nur noch, die kurze Vorstellung der sechs Baugrundstücke, die an einem Stichweg entstehen sollen. Die Grundstücke sind zwischen 630 und 1.780 Quadratmeter groß. An vier Grundstücken müssen Regenwasserzisternen in den Boden eingebracht werden, um die Entwässerung ohne Störungen zu gewährleisten. Die Dachneigung beträgt je nach Lage zwischen acht und 42 Grad. Bürgermeister Markus Haas hob noch hervor, dass im vergangenen Jahr eine sogenannte ELR-Grobanalyse in Weisbach durchgeführt worden war. Es habe sich aber gezeigt, dass sich alle Baulücken, die eventuell als Baureserve vorhanden sind, in privater Hand befinden und nicht veräußert werden. Um den Ortsteil dennoch eine gewisse Entwicklungsmöglichkeit einzuräumen und junge Familien binden zu können, sei der Beschluss zukunftsfähig. Dieser erfolgte dann auch einstimmig.
Im den folgenden drei Tagesordnungspunkten (2-4) ging es ebenfalls um die Schaffung von Bauplätzen. Betroffen in diesem Fall der zweiten Bauabschnitt im Baugebiet Hahnenfeld im Ortsteil Strümpfelbrunn. Dort hatte man bereits in der letzten öffentlichen Sitzung diverse Fragen angeschnitten, die nun vonseiten der Verwaltung beantwortet wurden. Außerdem brachte Bürgermeister Markus Haas einen Brief ein, den Anwohner des Forsthauswegs eingebracht hatten. Diese bisherig Sackgasse soll ebenfalls einen Durchgang zum Hahnenfeld II erhalten. Die Anwohner befürchten jedoch stark zunehmenden Begegnungsverkehr und entsprechende Gefahren für Passanten und (spielende) Kinder. Diesem Problem will die Verwaltung laut Haas durch die Errichtung von Pollern entgegen treten. Rettungsdienste erhalten für Notfälle entsprechende Schlüssel, sodass der Durchgang nur im Falle einer Straßensperrung an den anderen Zufahrten zum Neubaugebiet Hahnenfeld II geöffnet wird. In der Januarsitzung hatten einige Gemeinderäte angeregt, einen vorgesehenen Kreisel, unter dem ursprünglich eine Regenrückhaltung entstehen sollte, aus Kostengründen zu verzichten. Da es sich dabei jedoch um ein wesentliches Gestaltungsmerkmal im Bebauungsplan handelt, könne man so nicht vorgehen, sondern müsse den Kreisel bauen. Außerdem habe man die angrenzenden Grundstücke schon entsprechend vermessen und vermarkten, sodass unschöne, pflegeintensive Restflächen entstehen könnten, hob Wolfgang Stephan vom Bauamt hervor.
Insgesamt sollen in Hahnenfeld II 13 Bauplätze entstehen, für die schon fünf Reservierungen vorliegen. Darüber hinaus gebe es weitere Interessenten, weshalb man anders als beim Gewerbegebiet im Sigmundsgut Oberdielbach, kein Vermarktungsproblem sehe, ließ die Verwaltung wissen. Die durchschnittliche Bauplatzgröße liegt bei 660 Quadratmeter. Häuslebauer können voraussichtlich ab Frühsommer 2017 mit der Realisierung ihres Eigenheims beginnen.
Nachdem in diesem Zusammenhang die Ingenieursleistungen zum Preis von knapp 100.000 Euro vergeben worden waren, wurde ein sogenannter nichtständiger Umlegungsausschuss gegründet, dem neben Bürgermeister Markus Haas kraft Amtes, Dr. Matthias Neureither vom Vermessungsbüro Schwing & Dr. Neureither sowie vier Mitglieder des Gemeinderats entsprechend ihrem Stimmenanteil angehören. Die CDU benannte Reinhard Kessler und Paul Scholl (Vertreter Oliver Johe und Sven Ihrig); von der SPD wird Heinz-Dieter Ihrig (Vertreter Herbert Bachert) dem Gremium angehören; die UBW wird von Elisabeth Diemer (Vertreter Robin Bracht) vertreten. Der Ausschuss, der laut Christoph Mechler von der Gemeindeverwaltung, zu maximal zwei bis drei Sitzungen zusammentreten wird, beschließt anstelle des Gemeinderats die Umlegung der jeweiligen Grundstücke im Baugebiet Hahnenfeld II.
Bezugnehmend auf diesen Besprechungskomplex teilte Bürgermeister Markus Haas dem Kommunalparlament noch mit, dass auch die Landsiedlung Baden-Württemberg im Ortsteil Waldkatzenbach weitere Bauplätze erschließen will. Dort soll in etwa zeitgleich das Baugebiet Leimengrube III erschlossen werden.
Abschließend der Februarsitzung des Gemeinderats Waldbrunn gab Bürgermeister Markus Haas noch diverse Niederschriften nicht-öffentlicher Sitzungen bekannt. Dabei wurde nun auch für Bürger und Berichterstatter ersichtlich, dass es im Zusammenhang mit Fehlern bei der Sanierung der Katzenbuckel-Therme zu einem Vergleich zwischen Architekturbüro und Baufirmen sowie der Gemeinde Waldbrunn gekommen ist. Die Vergleichssumme sei bereits bei der Gemeindekasse eingegangen, so Haas. Außerdem sei die energetische Dachsanierung vorgestellt und der Kauf eines Grundstücks im Rahmen einer Zwangsversteigerung besprochen worden. Darüber hinaus sei der Gemeinderat über die Einrichtung einer Gemeinschaftsunterkunft für Flüchtlinge im Gewerbegebiet Sobertsbrunnen unterrichtet worden.
06.03.16
|